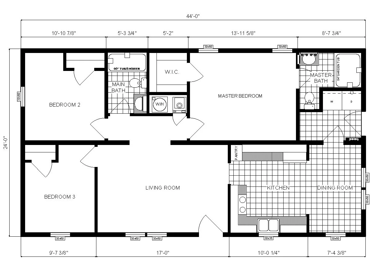
Home Listings 16 Orchard Avenue Previous114 Glenridge Drive 16 Orchard Avenue 16 Orchard Avenue $109,900.00 1,056 sq. ft. of living space3 bedrooms, 2 bathsTwo car garage Add To Cart Facebook0 Gallery View fullsize View fullsize View fullsize View fullsize View fullsize View fullsize View fullsize View fullsize View fullsize View fullsize View fullsize View fullsize View fullsize View fullsize View fullsize View fullsize View fullsize Virtual Tour